Nhà không mái, trồng toàn rau và cây xanh như ruộng bậc thang ở Hà Tĩnh
Gia chủ trồng rau, cây cảnh trên mái dốc giống như các thửa ruộng ở vùng cao.

Ngôi nhà 3 tầng ở thành phố Hà Tĩnh xây dựng dựa trên ý tưởng hòa trộn kiến trúc và nông nghiệp - nền tảng của sự phát triển bền vững.

Nằm trên mảnh đất 160 m2 (8x20m), công trình có thiết kế hiện đại, vẻ ngoài kín đáo, đảm bảo sự riêng tư cho gia chủ.

Tạo hình bậc thang khiến cho ranh giới trong-ngoài, trên-dưới bị xóa nhòa. Nhìn từ bên ngoài, bạn không thấy sự tách biệt giữa các tầng mà chỉ cảm nhận được một khối liền mạch.

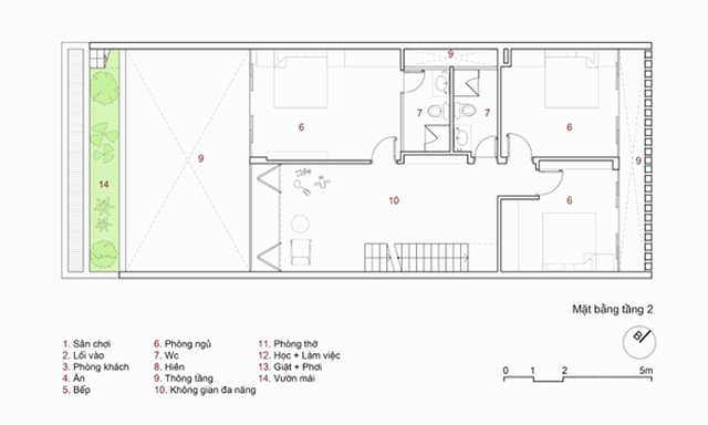
Kiến trúc sư dành một phần ba diện tích khu đất để làm sân chơi cho trẻ. Khoảng lùi rộng rãi giúp cho ngôi nhà hoàn toàn tách biệt với đường phố.

Chủ nhà có thể mở rộng cửa để đón nhận nắng gió từ sân chơi phía trước.

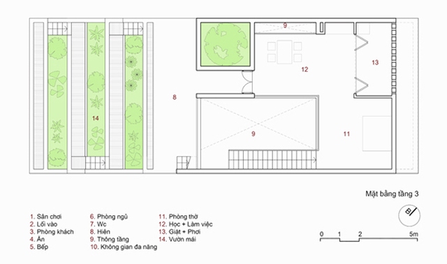
Không gian bên trong được bố trí nương theo độ dốc mái để khai thác tối đa các góc nhìn, đón ánh sáng và bóng đổ nhờ độ chênh giữa những khay trồng cây.

Đầu tư vào thiết kế hình khối kiến trúc, ngôi nhà tối giản về màu sắc và nội thất với tông màu trắng và thiết kế thẳng, phẳng.

Trong nhà có những khoảng thông tầng lớn, khe thoáng giữa các khay trồng cây nên ánh sáng lan tỏa mọi không gian.

Ngay cả khi không sử dụng rèm, ngôi nhà vẫn có sự kín đáo. Phòng ngủ ở mặt tiền nhìn xuống sân trước nhà.

Việc thi công không quá khó khăn, chỉ cần làm chống thấm cẩn thận. Chủ nhà trồng xen kẽ cây cảnh và hoa màu. Ở mỗi khay đều có vòi đóng mở tưới nước, ô thoát tràn, ngăn rác.

Các kiến trúc sư đặt tên cho công trình là "Tổ ấm ruộng" với mong muốn đưa người dân thành thị gần lại với thiên nhiên hơn thông qua những trải nghiệm đời thường thú vị. Họ có thể gieo trồng trên những luống rau trên mái, chia sẻ thu hoạch với hàng xóm.









Theo Ban Mai
VnExpress

Cách bố trí nội thất phòng ngủ chung cư theo phong thủy giúp sức khỏe tốt, đón may mắn
Ở - 8 giờ trướcGĐXH - Việc thiết kế nội thất phòng ngủ chung cư theo phong thủy để đem lại may mắn, tạo luồng sinh khí tốt để bảo vệ sức khỏe là điều mà các gia chủ nên quan tâm chú trọng.

Những điều phải biết khi dùng máy sấy quần áo
Ở - 9 giờ trướcGĐXH - Máy sấy quần áo giúp chăm sóc áo quần bền lâu nên được rất nhiều gia đình ưa chuộng. Tuy nhiên, không phải người dùng nào cũng sử dụng đúng cách.

Từ ngày 8/10 bước vào tiết khí Hàn Lộ 2025, bài trí phong thủy ngôi nhà làm ngay mẹo này để thu hút vận may
Ở - 11 giờ trướcGĐXH - Hàn Lộ là thời điểm âm thịnh, dương suy, nhưng cũng là khoảnh khắc chuẩn bị cho vận khí mới. Theo chuyên gia phong thủy, nếu biết cách điều hòa, bài trí phong thủy ngôi nhà sẽ tích tụ năng lượng tốt, khơi nguồn may mắn cho những tháng cuối năm.

Từng được kỳ vọng 'kế nhiệm' Tăng Thanh Hà thành 'ngọc nữ' điện ảnh, nữ diễn viên - bà chủ khu du lịch sinh thái trang trí biệt thự rộng 1.000m2 lộng lẫy đón Trung thu
Ở - 13 giờ trướcGĐXH - Trên trang cá nhân của mình, Vân Trang khiến dân tình trầm trồ khi quay lại cảnh decor từng góc trong biệt thự. Được biết, cô và gia đình hiện đang sống trong căn biệt thự rộng 1.000m2 ở phường Tân Phong, TP.HCM.

Các cách đuổi gián trong phòng ngủ để gián một đi không trở lại
Ở - 16 giờ trướcGĐXH - Gián không chỉ là những sinh vật gây phiền toái mà còn có thể gây ảnh hưởng đến sức khỏe và không gian phòng ngủ của bạn. Cùng tham khảo một số cách đuổi gián trong phòng ngủ đơn giản, dễ thực hiện trong nội dung bài viết dưới đây.

Có gì bên trong căn hộ của Phi Thanh Vân trước khi lấy chồng lần 3?
Ở - 16 giờ trướcSau quãng thời gian gắn bó, Phi Thanh Vân và bạn trai dự kiến tổ chức đám cưới vào cuối năm 2025.

Bố trí cửa sổ nhà ở chuẩn phong thủy sẽ vượng khí sinh tài, thu hút may mắn
Ở - 19 giờ trướcGĐXH - Cửa sổ được ví như “đôi mắt của ngôi nhà”, nó đóng vai trò là nơi đem lại ánh sáng và sự thông thoáng cho không gian. Bài viết dưới đây, sẽ hướng dẫn bạn cách thiết kế cửa sổ nhà ở đảm bảo phong thủy, giúp thu hút may mắn, vượng khí sinh tài.

Cách đuổi muỗi bằng tỏi đơn giản, hiệu quả
Ở - 1 ngày trướcGĐXH - Muỗi ẩn nấp khắp nơi làm tăng nguy cơ bệnh sốt xuất huyết, sốt rét. Để tiêu diệt chúng, thay vì áp dụng các biện pháp tạm thời, bạn có thể dùng tỏi để diệt muỗi vừa hiệu quả vừa an toàn cho sức khỏe.

Tại sao khi bị ong đốt lại bôi vôi?
Ở - 1 ngày trướcGĐXH - Vết đốt của ong thường gây ra cảm giác đau rát và ngứa ngáy khó chịu, bôi nước vôi lên vết đốt có thể làm dịu cảm giác này hiệu quả.

Vào mùa nồm ẩm: Nên chọn tủ sấy hay máy sấy quần áo?
Ở - 1 ngày trướcGĐXH - Vào mùa ẩm ướt, áo quần sau khi giặt rất lâu khô, dễ ẩm mốc và có mùi hôi khó chịu. Khi đó, tủ sấy và má sấy quần áo là thiết bị giúp sấy khô áo quần nhanh chóng và tiện lợi.

Ngày giờ đẹp cúng Rằm tháng 8 - cúng Tết Trung Thu sớm theo tuổi mang lại nhiều may mắn, tài lộc bạn nên biết
ỞGĐXH – Chuyên gia phong thủy Nguyễn Song Hà cho biết, dưới đây là những ngày và khung giờ đẹp cúng Rằm tháng 8 - cúng Tết Trung Thu sớm cho từng gia đình theo tuổi của trạch chủ, bạn có thể tham khảo nếu không thực hiện được chính ngày.