Thiết kế nhà cấp bốn 2 phòng ngủ với 400 triệu
Gia đình tôi có mảnh đất 63 m2 ở Buôn Ma Thuột, muốn làm nhà đơn giản cho bố mẹ, có chỗ để ôtô cho con cháu về chơi. (Tùng)

Khu đất của nhà tôi ở Buôn Ma Thuột có kích thước 4,2x15m. Tôi dự định làm nhà một tầng cho ba mẹ với 2 phòng ngủ (một phòng ngủ dự phòng cho con cháu). Gia đình dự trù kinh phí khoảng 400 triệu đồng.
KTS tư vấn như sau:
Ở tầng một, gia đình dành sân trước làm chỗ để xe, chỉ trang trí một vài bồn cây nhỏ. Kế tiếp là phòng khách, ban thờ, bếp, phòng ngủ và sân sau.

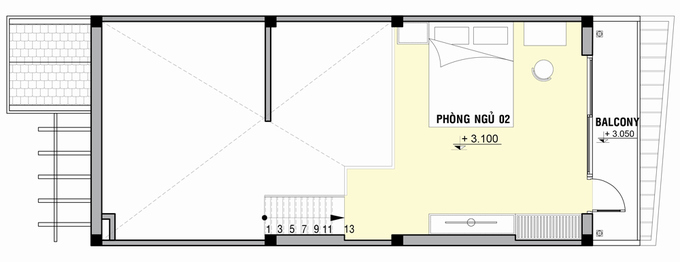
Gác lửng vừa đủ chỗ kê thêm giường dự phòng.

Để tiết kiệm chi phí, bạn có thể dùng mái lợp tôn chống nóng, vách nhẹ ngăn cách để giảm chi phí cho móng. Gia chủ nên đầu tư vào việc cách nhiệt vì khu vực này nắng nóng nhiều.

Gác lửng và lối lên nên làm bằng các loại vật liệu nhẹ, không quá tốn kém vì ở đây bố trí ít đồ.

Trần nhà cần làm cao hơn để đi lại ở gác lửng được thoải mái. Khu vực phòng khách chủ yếu dùng tông trắng, gỗ sáng màu nhẹ nhàng.

Ở đây có bố trí cả ban thờ nên gia chủ không bố trí tivi, thay vào đó là treo những bức tranh, cây cảnh tạo cảm giác tĩnh lặng, bình yên.

Bếp ăn tiện nghi và gọn gàng cho gia đình ít người được phân cách nhờ một mảng tường.

Giữa hai phòng vẫn có sự liên kết khi không làm cửa khép kín cho bếp.

Bồn rửa tay, đánh răng rửa mặt được bố trí bên ngoài giúp sinh hoạt được thuận tiện hơn.

Phòng ngủ chính ở tầng một, lấy sáng và thông gió từ khoảng vườn nhỏ phía sau.

Phòng ngủ thứ hai nằm trên gác lửng với lan can ngăn cách nên vẫn có sự thoáng đãng.

Nhà chỉ có hai người ở nên chỉ cần một khu WC.
Theo An Yên
VnExpress

Trồng cây ăn quả này trước cửa vừa cho bóng mát vừa giúp gia chủ ‘hái lộc quanh năm’, con cái dễ thành tài
Phong thủy - 2 giờ trướcGĐXH – Dân gian vẫn cho rằng, trồng khế trước cửa nhà mang lại nhiều điều tốt lành. Tuy nhiên, chuyên gia phong thủy cho rằng, để thực sự mang lại may mắn cho gia chủ khi trồng cần phải biết những điều dưới đây.

Cách khử mùi nhựa bình siêu tốc cực hiệu quả
Ở - 4 giờ trướcGĐXH - Bình siêu tốc đã trở thành vật dụng không thể thiếu trong mỗi gia đình. Tuy nhiên, mùi nhựa khó chịu bám lại trên bình sau một thời gian sử dụng khiến nhiều người cảm thấy phiền toái.

Mẹo hay để bảo quản gạo lâu dài không lo mối mọt
Ở - 8 giờ trướcGĐXH - Gạo là một trong những lương thực thiết yếu trong căn bếp của mỗi gia đình, nhưng cũng rất dễ bị mối, mọt và côn trùng gây hại nếu không bảo quản đúng cách. Cùng tìm lời giải qua bài viết sau về cách bảo quản gạo lâu không bị mối, mọt.

Tuyệt chiêu khử mùi ẩm mốc hiệu quả cho nhà cửa sau mùa mưa lũ
Ở - 11 giờ trướcGĐXH - Sau những ngày mưa lũ kéo dài, nhiều gia đình phải đối mặt với tình trạng nhà cửa ẩm mốc, nặng mùi khó chịu. Điều đó không chỉ làm giảm chất lượng sinh hoạt mà còn tạo điều kiện cho vi khuẩn, nấm mốc phát triển.

Cách xử lý giày dép bị ẩm ướt và hôi trong mùa mưa cực hiệu quả
Ở - 1 ngày trướcGĐXH - Mùa mưa đến, kéo theo nỗi lo giày dép ẩm mốc và có mùi hôi khó chịu. Giày dép ẩm ướt không chỉ gây mất thẩm mỹ mà còn ảnh hưởng đến sức khỏe của bạn.

Nếu trong nhà bạn còn giữ những thứ sau, hãy mạnh dạn loại bỏ trước khi quá muộn
Ở - 1 ngày trướcGĐXH - Hàng ngày phải tiếp xúc với hàng tá đồ đạc, có thể bạn chẳng mấy để tâm nhưng có những thứ tưởng an toàn lại đang đội lốt “sát thủ vô hình” lặng lẽ gây hại cho sức khỏe chúng ta.

Mở tiệc thiết đãi bạn bè, Đoàn Văn Hậu và Doãn Hải My bị lộ diện biệt thự chục tỷ mới vào ở
Ở - 1 ngày trướcGĐXH - Căn biệt thự này của cặp đôi được bao phủ bởi cây xanh mát xung quanh.

Công dụng bất ngờ của vỏ tỏi trong cuộc sống hàng ngày, ai biết rồi liền vội đi gom vỏ tỏi
Ở - 1 ngày trướcGĐXH - Tỏi từ lâu đã là gia vị không thể thiếu trong gian bếp của người Việt. Thế nhưng, khi chế biến tỏi, phần vỏ mỏng bên ngoài lại thường bị bỏ đi mà ít ai biết rằng chính nó lại rất hữu ích trong đời sống.

Cách đơn giản để tăng tài lộc cho gia đình, ai cũng làm được
Ở - 1 ngày trướcGĐXH - Bạn đã bao giờ bước vào nhà mình và thấy không khí nhẹ thơm, mùi dễ chịu mà chẳng cần xịt nước hoa hay đốt tinh dầu? Theo các chuyên gia phong thủy, đó là dấu hiệu môi trường sống đang “tự thanh lọc”, dương khí mạnh mẽ, tài khí dễ tụ, vận may tài lộc sắp đến.

Cách vệ sinh cửa sổ sáng bóng chỉ với vài vật dụng sẵn có trong bếp
Ở - 1 ngày trướcGĐXH - Cửa sổ càng lớn, nhà càng sáng nhưng dễ bám bụi và nấm mốc. Nếu không được vệ sinh thường xuyên, khe cửa và bệ cửa sổ sẽ tích tụ bụi gây hại cho sức khỏe.

Lên tiếng về sự cố đọc nhầm công điện trong bản tin Thời sự 19h, BTV Minh Trang hiện sống trong căn hộ thế nào?
ỞGĐXH - Minh Trang từng chia sẻ, cô hiện đang sống tại một căn hộ chung cư rộng 140m2 tại Hà Nội.